+7

LES ABYMES - BESSON : PROPRIETE DE 7962 m²

Les Abymes (97139)

Propriete 1 pièce(s) 7 chambre(s) 300 m²

2
2
7962 m²
990 000 €
Réf 1148 Bis

LES ABYMES - BESSON

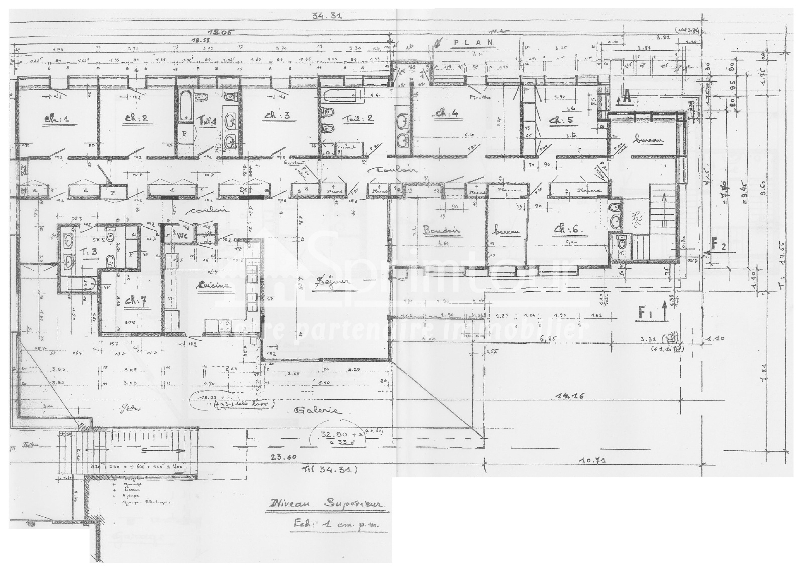
Sur une propriété d’une superficie de 7 962 m², se dresse une construction principale en béton armé, édifiée sur deux niveaux.

Édifiée en 1968 , ce bien d’époque bénéficie d’un cadre verdoyant et paisible, offrant un véritable lieu de quiétude. Il pourrait parfaitement convenir après rénovation, à l’installation d’une structure administrative, d’un établissement d’accueil, d’un foyer d’hébergement, ou tout autre projet d’aménagement.

  • Au niveau principal (plain-pied) :
    Une vaste terrasse, un spacieux séjour, un bureau, une cuisine, un dégagement, cinq chambres, trois salles de bains complètes, un second bureau ainsi qu’une pièce de rangement.
    (Superficie habitable d’environ 300 m²)

  • Au sous-sol :
    Un espace de stationnement, plusieurs pièces de rangement ainsi qu’une salle d’eau complète.

Une seconde construction, également en béton armé et de plain-pied, se compose d’une chambre, d’un petit bureau, d’une salle à manger, d’une cuisine, et d’une salle d’eau avec douche et lavabo.

À l’extérieur, une piscine (actuellement hors d’usage) prolonge agréablement la partie habitation, surmontée d’une toiture-terrasse offrant un potentiel de valorisation.

Un lieu à visiter sans tarder, propice à la projection et à la rénovation, pour lui redonner toute sa vitalité d’antan . Une agréable visite s'impose avec votre partenaire immobilier SPRIMTOUR , dont le siège soviel est Immeuble " ENTRE DEUX MERS " - Zac de Moudong Sud - 97122 BAIE-MAHAULT - Tél : 05 90 38 98 80.

Bilan énergétique

Diagnostics énergetiques
A propos de ce bien Caractéristiques de ce bien
  • Surface 300 m²
  • terrain 7 962 m²
  • 7 chambre(s)
  • 2 salle(s) de bain
  • 2 salle(s) d'eau
  • construit en 1967
  • 1 garage(s)
  • 2 niveau(x)
  • terrasse

Financier

Informations financières
Prix de vente honoraires TTC inclus 990 000 €
Taxe foncière annuelle 7 820 €

Simulation

Calcul des mensualités
* Champs obligatoires
SPRIMTOUR Baie-Mahault Agence