+4

Terrain à vendre à Bouillante - Opportunité pour un projet d'investissement ou de...

Bouillante (97125)

Terrain 1 pièce(s) 10 m²

2983 m²
420 000 €
Réf 1127

Découvrez ce magnifique terrain de 2983 m² sur la commune de Bouillante. Son emplacement est idéal : à seulement quelques minutes des commerces de proximité, écoles, collège et des plages paradisiaques de la côte ouest connues pour les activités touristiques de la plage de MALENDURE.

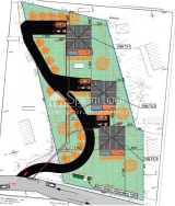
Ce terrain est une opportunité rare, il est déjà facile à aménager et prêt à accueillir votre projet. Un atout majeur pour les investisseurs : un dossier de plans d'architecte est déjà élaboré et inclus dans la vente. Ce projet prévoit la construction de trois maisons individuelles, chacune avec sa piscine privée.

De plus, le terrain bénéficie d'une belle lumière du soleil couchant, ce qui promet des ambiances uniques pour les futures habitations.

Que vous soyez un promoteur, un investisseur cherchant à développer un projet locatif à fort potentiel ou un particulier ce terrain offre toutes les possibilités.

Ne manquez pas cette occasion unique de découvrir ce terrain dans un secteur très prisé de la Guadeloupe. Contactez notre agence dès maintenant pour plus d'informations et pour planifier une visite. AGENCE SPRIMTOUR à BOUILLANTE au 0590 813 722.

Le prix est de 400 000 euros + les honoraires de l'agence de 5% à la charge de l'acquéreur soit 20 000 euros.


Les informations sur les risques auxquels ce bien est exposé sont disponibles sur le site Géorisques

Bilan énergétique

Diagnostics énergetiques
A propos de ce bien Caractéristiques de ce bien
  • Surface 10 m²
  • terrain 2 983 m²
  • construit en 2026
  • quartier bourg

Financier

Informations financières
Prix de vente honoraires TTC inclus 420 000 €
Prix net vendeur 400 000 €
Prix de vente honoraires TTC exclus 400 000 €
Honoraires TTC à la charge acquéreur 5 %

Simulation

Calcul des mensualités
* Champs obligatoires
SPRIMTOUR Bouillante Agence