+1
Baie-Mahault (97122)

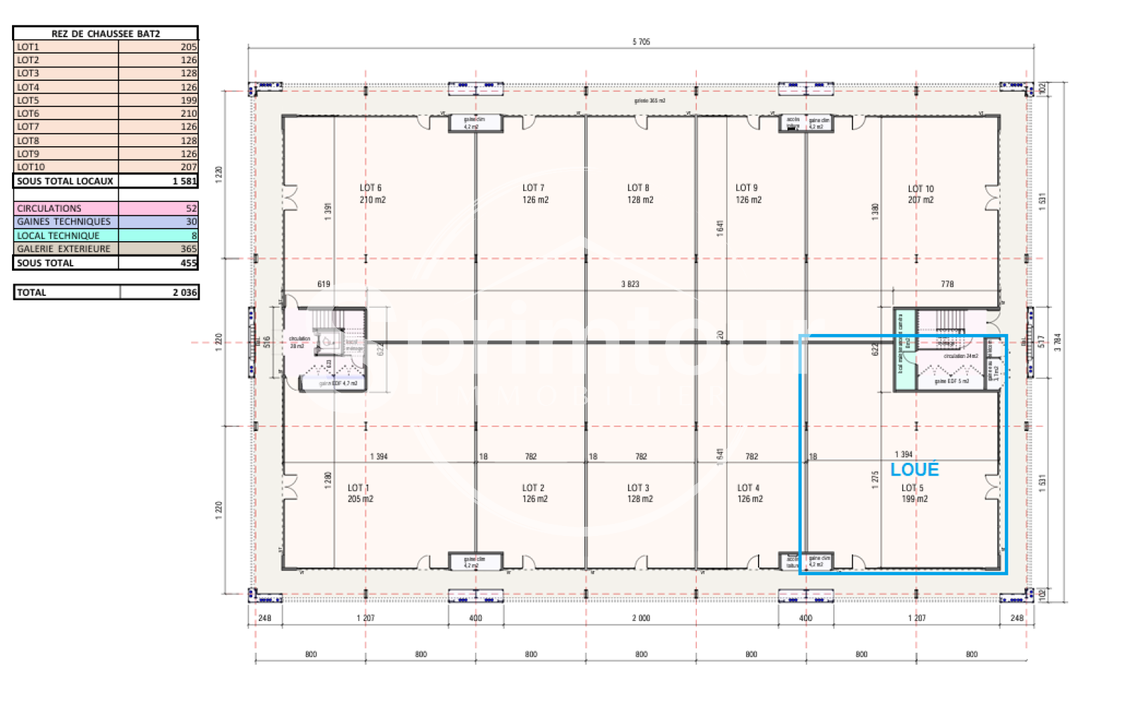
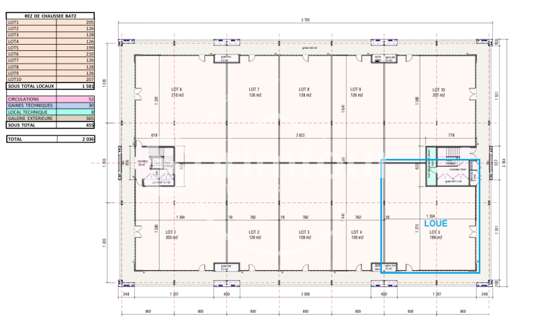
Local commercial 126 m²

2 772 € / mois HT - HC*
Réf 1233
LOCAL COMMERCIAL (126m²) - Immeuble OCEANIC 2 - Jarry 97122 BAIE-MAHAULT

À louer : Local commercial – Immeuble neuf à Jarry

Situé au cœur de Jarry, dans un immeuble neuf offrant une excellente visibilité, ce local commercial en rez‑de‑chaussée constitue une opportunité idéale pour développer votre activité dans l’une des zones les plus dynamiques de Guadeloupe.

 

Caractéristiques du bâtiment : Immeuble neuf, moderne et fonctionnel ,Ascenseur , Accès PMR (personnes à mobilité réduite) ,Gardiennage de nuit ,Vidéosurveillance 24h/24 ,Grand parking pour clients et collaborateurs

 

Plusieurs lots disponibles dans l’immeuble (bureaux ou commerces) de 126 m² à 200 m² → (voir plan)


Atouts du local : Emplacement stratégique / Forte visibilité et accessibilité /Environnement professionnel attractif / Idéal pour accueillir une activité nécessitant passage, confort et sécurité

Idéal pour : Commerce spécialisé , Cabinet médical ou paramédical , Agence de services , Showroom ,  Bureaux professionnels , Activité nécessitant un accès facile et un stationnement aisé

 

Ce local représente une belle opportunité pour toute entreprise souhaitant s’implanter ou se développer à Jarry dans un cadre moderne, sécurisé et parfaitement situé.


Contactez votre partenaire immobilier SPRIMTOUR au : +590 690 55 38 69 - Service location - MONTELLA Nicolas

IMMEUBLE ENTRE DEUX MERS - MOUDONG SUD - ZI JARRY - 97122 BAIE MAHAULT


Bilan énergétique

Diagnostics énergetiques
A propos de ce bien Caractéristiques de ce bien
  • Surface 126 m²
  • construit en 2025
  • 2 étage(s)
  • 1 ascenseur
  • quartier Centre, houelbourg, JARRY

Financier

Informations financières
Loyer HT 2 772 € / mois
Honoraires HT charge locataire 4 989,60 €
Dont état des lieux Non renseigné
Dépot de garantie Non renseigné
Bail commercial
SPRIMTOUR Baie-Mahault Agence

* HC : Hors Charges

* HT : Hors Taxes